总价7.02亿元 宁波奉化年度首宗低密宅地由本土国资竞得
住在杭州网12月10日讯(记者 郑青青 通讯员 万雪丽)今日,宁波奉化区本年度首宗低密宅地成功出让——奉化区FH16-04-01地块,由宁波元启城开置业有限公司(奉化国资联合奉化城开)以总价70239.88万元竞得,折合成交楼面价8791元/㎡。
地块位于奉化区锦屏街道、奉化公安局西侧,出让面积76095㎡,容积率1.05,可建面积79899.75㎡,其中一类住宅建面占比约89%(71000㎡)。

地块信息表

地块实拍图(来源:喆传甬祥)
从区域配套看,地块位于奉化锦屏街道核心区,向东900米为规划中的地铁9号线,可通过地铁直达宁波南部商务区、老城区直达北仑小港;向南1.5公里即可抵达奉化城市中心,由长汀路、南山路等主干道快速到达万达广场、银泰城核心商业区;向西400米即是奉化首个集文化、休闲、娱乐、生态于一体的大型综合性城市公园——仁湖文化公园。

地块区位图(来源:喆传甬祥)
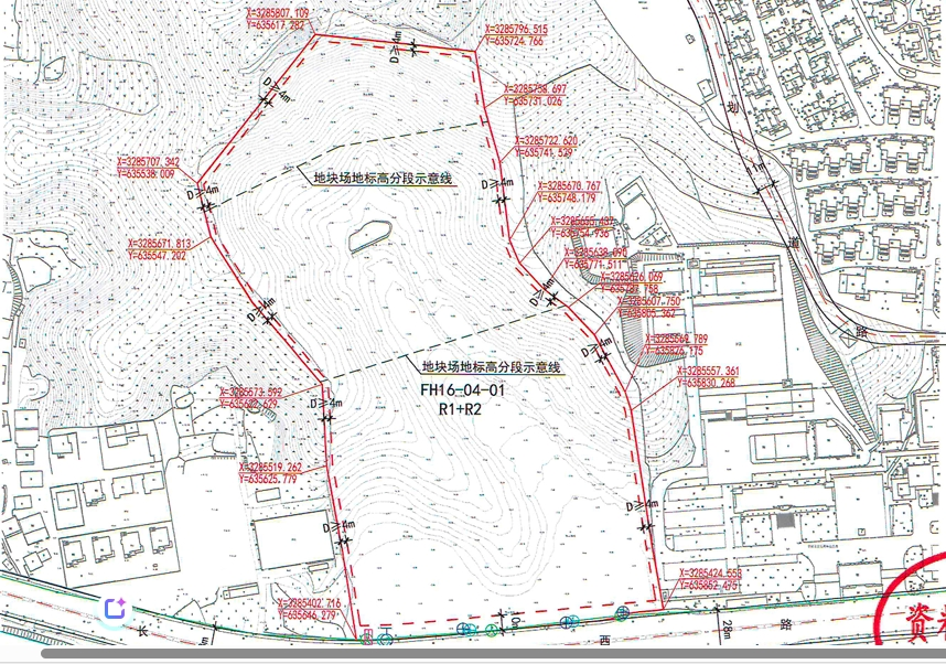
从规划条件看,地块坐落于山地间,开发要求较为严格:容积率1.05,建筑高度18米,并明确要求建筑依山就势布局、控制面宽、限制单幢户数,利用地形高差创造台地景观等。由此可见,未来产品将以联排、叠排等低层住宅为主,定位改善市场。

规划条件地块控制图(来源:浙江省网上交易中心)
当前,地块所属板块内仅有奉化交投打造的望山澄庐项目,处于尾盘在售状态。该项目于2024年12月开盘,截至目前备案去化率已达94%,实际成交均价约28000元/㎡。同为山地墅排产品,其快速去化验证了市场对优质低密住宅产品的需求。
待本地块入市时,周边市场将呈现“需求已获验证、竞品逐步退场”的有利态势,竞争格局清晰。
凡注有"住在杭州网"或电头为"住在杭州网"的稿件,均为住在杭州网独家版权所有,未经许可不得转载或镜像;授权转载必须注明来源为"住在杭州网",并保留"住在杭州网消息"的电头。
本网未注明"来源:住在杭州网"的图文等稿件均为转载稿,本网转载出于传递更多信息之目的,并不意味着赞同其观点或证实其内容的真实性。
联系电话:0571-85399752。



